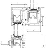
IGLO EDGE SLIDE

IGLO EDGE SLIDE

Questions?
Let us find the best solution.

Write to us and get a quick response from our team.

Get in touch
Product URL

I agree to the processing of my data in accordance with the privacy policy.

Tell us about your challenges, and together we'll find a solution!

Get a Quote

Need a quick answer?

Leave your contact and we’ll get back to you first.

+1

    I agree to the processing of my data in accordance with the privacy policy.

    Submit